公司简介 公司新闻 综合资讯 产品展示 产品目录 客户反馈 联系我们 电子邮局
主要产品为静态混合器、动态混合设备、传热反应设备、过滤设备、消声设备、阻火设备等

管式反应器
切水器
管道过滤器
混合器
自清洗过滤器
空气过滤器
灭菌过滤器
滤件系列
精细过滤器
粉体输送设备
粉体混合设备
液体搅拌设备
消声器
特种小型设备
排水器
高效换热器
纸浆漂白专用设备
除污器(滤水器)
喷射器
纤维除雾器

 
罐下采样器

一、简介:

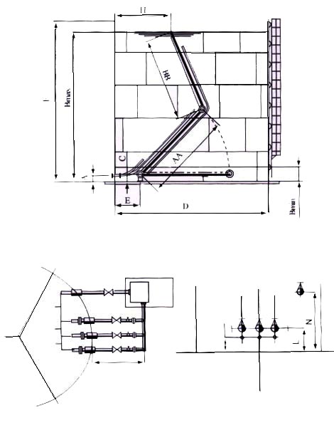
   罐下采样器是指用于采集油品试样的罐下采样设施,包括设在罐内的采样管和附件及罐外部分(包括连接管道、泵和阀门等)。此种采样器是为了满足油品采样不上罐顶而产生的“自动”或“半自动”的设施。罐下采样器主要由上采样管、中采样管、下采样管、浮筒浮球)、柔性接管、手动泵、球代、固定架、铺助支撑。

二、特点:

   1、适用于汽油、煤油、柴油、喷气燃料、石脑油和苯类等轻质液体石油产品油罐的油品采样。

   2、对罐内油品的三个不同高度点进行采样,采样点分别于液位的六分之五,二分之一,六分之一(或距罐底250mm)外。

   3、主体结构多为三根采样管及一根支撑管(支撑管也可是浮动出液装置的浮管等)。

   4、采用该种罐下采样器的实际采样点误差与设计误差不超过5%。

   5、采样爱惜通径多不大于20mm。

   6、节省采样时间,提高了工作效率。

   使用此罐下采样器,可减少静电效应的危险。

三、材质:

   介质为喷气燃料时,采样管材质选用不锈钢或铝合金,无特殊要求时,采样管的材质可选用碳钢。

浮筒型:CY-A-XX些结构主要由浮筒、主支撑、辅助支撑、罐外接管、采样管球阀、回油管球阀,采样管、回油管,金属软管、手摇式手动泵等组成。


折叠型:CY-B-XX此结构主要由折叠式支撑管、主支撑、辅助支撑、罐外接管、采样管球阀、针阀、回油管球阀、采样管、回油管、金属软管、手摇式手动泵等组成,一般由浮顶或由浮顶提供浮力。特点:支撑管及上采样管分为两段,占用罐内空间小。


 

 
南通天蓝石化设备有限公司 地址:启东市台角工业园区跃龙路18号 邮编:226200 http://www.ldyjsh.com E-mail:13862980289@126.com
电话:0513-83750261 手机:13862980289 静态混合器混合器