公司简介 公司新闻 综合资讯 产品展示 产品目录 客户反馈 联系我们 电子邮局
主要产品为静态混合器、动态混合设备、传热反应设备、过滤设备、消声设备、阻火设备等

管式反应器
切水器
管道过滤器
混合器
自清洗过滤器
空气过滤器
灭菌过滤器
滤件系列
精细过滤器
粉体输送设备
粉体混合设备
液体搅拌设备
消声器
特种小型设备
排水器
高效换热器
纸浆漂白专用设备
除污器(滤水器)
喷射器
纤维除雾器

 
 
液固喷射器(水喷射式装卸车)
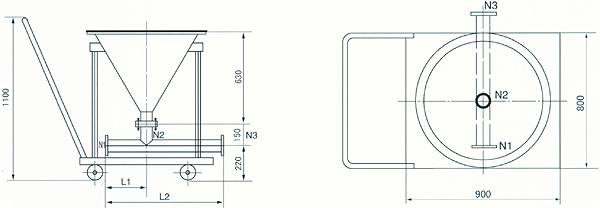
概 述

液固喷射器(SLY型水喷射式装卸车),主要由漏斗和喷射器两部分构成,用来装填和补充颗粒材料。如活性碳、离子交换器用的树脂和其它固体材料。

液固喷射器(SLY型水喷射式装卸车),它借助高压水传送可流动颗粒材料,使其通过一个漏斗进入喷射器。

水以很高的速度从动力喷嘴中喷出,进入喷射器的混合区,这时喷射的水带动传送物,通过一个管道或软管导入使用现场。



技术参数 

型 号
Y-I
Y-II
传送量 m3/h
0.2-1.5
1-3
水消耗量m3/h
4-6
8-12
N1
65
80
N2
80
100
N3
65
80
L1
280
300
L2
755
820


注:1、水压力为≤0.3Mpa

       2、漏斗容量:100L

       3、接口法兰标准:HG20593-97 RF  PNl.0

  打印此页】 【返回
   
   
南通天蓝石化设备有限公司 地址:启东市台角工业园区跃龙路18号 邮编:226200 http://www.ldyjsh.com E-mail:13862980289@126.com
电话:0513-83750261 手机:13862980289 静态混合器混合器